FREELAND, Md. — Building a solar farm can often mean taking up many acres of land - but a farm in northern Baltimore County hopes to get a new kind of solar array that will allow it to keep crop production going.
It's called "agrivoltaics," and, if built, it will be the first such set-up in Maryland.
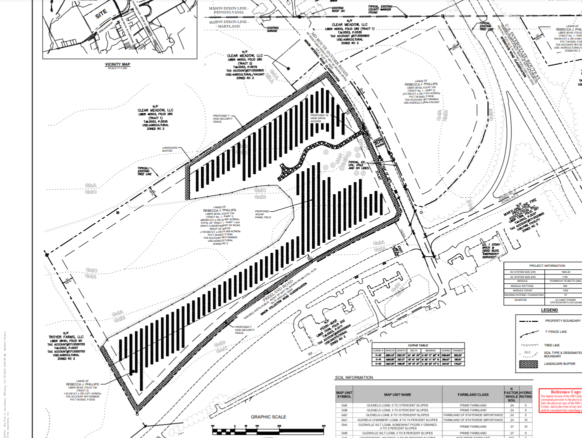
The county just reviewed the proposal from Lightstar solar company to build the "agrivoltaics" project on a roughly 23-acre area in Freeland, right by the Pennsylvania line.
The solar panels would be elevated off the ground, high enough to allow the tenant farmer to grow crops and letting a tractor get into the solar array. Agrivoltaics makes changes in height and row spacing, as opposed to traditional ground-mounted solar installation, explained Lightstar development manager Cecelia Stephens, who is managing this project.
The property is at 21710 York Road, right off of I-83. It's owned by Rebecca Phillips and is currently used as farmland by a tenant farmer who grows soy and corn, according to the application to the county.
Attorney Larry Schmidt said at this week's Development Review Committee meeting that he believes this will be the first agrivoltaics project in Maryland, allowing agriculture to continue on a solar farm:
This is a concept that's gaining credence all over the country.
The farmer will still need to make some adjustments, Stephens said.
"There will be some tweaks, for sure, because one of the crops they currently rotate is corn," she said, explaining that typically the crops produced with agrivoltaics are soy and hay.
The project received an Open Energy Grant from the Maryland Energy Administration, Stephens said.
It is still moving through the permitting process, but actual construction typically takes less than a year.

Baltimore County Development Manager Lloyd Moxley asked Schmidt at the meeting if a glare analysis was done, due to the site's proximity to I-83. Schmidt said it was done, and it concluded that glare would not be an issue for the highway.
Lightstar Renewables, which was founded in 2019, helped found the Solar & Farming Association, which seeks "to grow commercial crop and livestock agrivoltaics in the United States."
Moxley joked about the concept at the meeting: "Theoretically, you can grow your corn there and then pop in your popper and do some popping."
Schmidt agreed, saying: "It's a one-stop shop!"